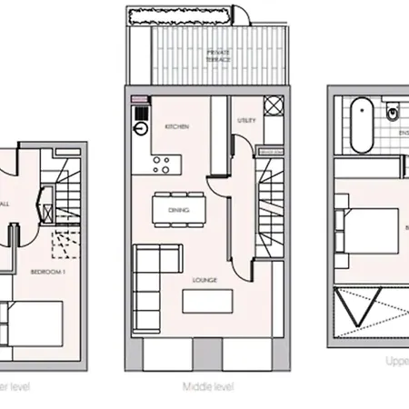
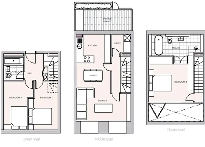
3 Bedroom Penthouse Roof Garden Parking Canal
Preview only — see all hotel photos
See all 28 photos 1 /
28
Best options for your travel dates
Vis hotel på kort
3 Bedroom Penthouse Roof Garden Parking Canal
Manchester's gæster vil nyde opholdet på 3 Bedroom Penthouse Roof Garden Parking Canal ferielejlighed.
Indkvarteringen ligger 2 km fra Phones 4 U Arena, mens Det nationale fodboldmuseum ligger 2,1 km derfra. Der er Gordons Kitchen og The Banyan Tree, der serverer Chinese gerechten retter, som kan findes inden for 6 minutters gang fra indkvarteringen. Museum for videnskab og industri kan nås på få minutter til fods.
Der findes et tekøkken. Det er mindre end 5 minutter til fods til Chorlton Road/Chester Road-busstation.
Mere +
Mindre -
Vent venligst, vi tjekker tilgængelige værelser til dig.
Vi søger hoteller
Faciliteter
Hovedfunktioner
- Kæledyr ikke tilladt
Faciliteter
General:
- Kæledyr ikke tilladt
- Elevator
Middag:
- Tørretumbler
- Køkkengrej/ Køkkenredskaber
Bekvemmeligheder på værelset:
- Te- og kaffefaciliteter
- Strygeservice
- Vaskemaskine
Politik
Indtjekning: fra 15:00 indtil 23:59
Udtjekning: indtil 11:00